DOI: 10.11817/j.issn.1672-7207.2018.08.028
压-拉循环荷载作用下红砂岩蠕变特性
赵宝云1, 2,刘东燕1,黄伟1,刘伟3,黄天柱1,陈超1
(1. 重庆科技学院 建筑工程学院,重庆,401331;
2. 北达科他州立大学 土木与环境工程系,美国 法戈,58108-6050;
3. 重庆市地勘局208水文地质工程地质队,重庆,400700)
摘要:利用自制岩石杠杆式拉压蠕变试验仪,对红砂岩进行2种恒定循环荷载蠕变试验以及等增量循环蠕变实验,分析各应力水平下的蠕变特征,研究岩石蠕变与循环次数之间的规律,探讨蠕变参数与循环次数之间的关系。研究结果表明:在各级恒定荷载作用下,试样变形均包含明显的瞬时应变和衰减蠕变及稳态蠕变,在1.19 MPa拉伸荷载作用下岩样出现加速蠕变。在50%σc-50%σt循环荷载作用下,岩样最大轴向应变逐渐增大,最大横向应变均逐渐减小,试样整体“缩短”而无明显扩容;85%σc-85%σt强度荷载使得岩样最大轴向与横向应变随着循环次数增加而增大,不仅表现为轴向“缩短”,而且出现体积扩容;在2种恒定压-拉荷载作用下,试样均产生一定的残余永久变形,较大荷载使得试样轴向与横向残余永久应变均随循环次数增加而增加,而较小荷载作用下试样横向应变随循环次数增加而减小;试样蠕变随着增量循环荷载等级增加而增加,且产生一定的永久残余应变;施加 32.59 MPa压应力后试样出现最大体积压缩应变,后体积逐步开始扩容。Burgers蠕变模型可以较好地反映红砂岩在恒定循环荷载作用下的蠕变特性,试样在经历3~4次循环后材料属性随循环次数及时间进一步劣化,最终在第5次循环时发生拉伸破坏。
关键词:岩石力学;循环荷载;蠕变;蠕变模型
中图分类号:TU45 文献标志码:A 文章编号:1672-7207(2018)08-2058-09
Creep behavior of red sandstone under uniaxial cyclic compression and tension loading
ZHAO Baoyun1, 2, LIU Dongyan1, HUANG Wei1, LIU Wei3, HUANG Tianzhu1, CHEN Chao1
(1. School of Civil Engineering and Architecture,
Chongqing University of Science and Technology, Chongqing 401331, China;
2. Department of Civil and Environmental Engineering,
North Dakota State University, Fargo 58108-6050, United States;
3 No.208 Hydrogeology and Engineering Geology Team,
Chongqing Bureau of Geology and Minerals Exploration, Chongqing 400700, China)
Abstract: To study the creep behavior of sandstone, two constant tension and compression cyclic loading creep tests and an incremental tension and compression cyclic creep test of red sandstone were conducted by using self-made rock leveraged tensile and compressive creep tester. Creep behavior of red sandstone at each stress level was analyzed,and the relationship between creep deformation and cycle times was studied. Relationships between creep parameters and cycle times were also discussed. The results show that deformation of red sandstone at each stress level contains significant instantaneous strain, decay creep strain and steady creep strain. The creep and failure accelerates at 1.19 MPa tensile load. At 50%σc-50%σt strength level, the maximum axial strain of sample increases and the maximum lateral strain decreases with the cycle times, and the sample overall presents “shortening” and has no obvious expansion. At 85%σc-85%σt strength level, the maximum axial and lateral strain of sample increase with cycle times, and the sample not only presents axial “shortening” but also volume expansion. The sample experiences residual permanent deformation at two different constant stress levels, and the axial and lateral residual permanent strain of the specimen increases with the cycle times at larger stress level, while the lateral strain decreases with cycle times at smaller stress level. Creep value of the sample increases with the increase of the load level, and a certain degree of permanent residual strain is generated. The sample presents the maximum compressive volume strain at compression stress level of 32.59 MPa and then its volume increases gradually. Burgers creep model can better reflect creep behavior of red sandstone under constant cycle loading. After cyclic compression and tension loads for 3-4 times, material properties of rock sample further deteriorate with cycle times and the sample finally presents tensile failure in the fifth cycle time.
Key words: rock mechanics; cyclic loading; creep; creep model
在边坡、地下洞室等岩体工程的开挖过程中,岩体内部应力将发生二次分布[1-2],应力重分布会使岩体经历加载、卸荷以及卸荷拉伸等复杂受力过程。另外,地质构造运动、水库大坝的反复排蓄水、桥梁下的岩基等均会使得岩石经历反复加载、卸荷、拉伸等过程,而这些过程又往往伴随着时间历程。因此,研究压-拉循环荷载作用下岩石的蠕变特征具有重要的实践意义。当前,国内外研究者针对岩石在压缩、拉伸荷载条件下的蠕变特性进行了探讨[3-6]。LIU等[7]对灰岩在流固耦合条件下的蠕变特性进行了研究;刘东燕等[8]对红砂岩直接拉伸蠕变特性进行了研究,提出适合红砂岩蠕变全过程的改进Burgers蠕变模型。在岩石压缩-卸荷蠕变方面,辛亚军等[9]利用RLW-2000型岩石三轴流变仪,对2组岩石进行单轴分级加载蠕变试验,分析了岩石不同应变差值下能量的耗散过程,确定了岩石不同加载水平(或循环次数)与变形模量的关系,研究了加载蠕变与应力卸载的曲线路径。ZHAO等[10]对硬岩在增量循环加载与卸荷作用下的蠕变特性进行了研究。徐鹏等[11]根据试样弹性与塑性蠕变特性,建立了相应的蠕变模型,并对煤进行三轴循环加卸载蠕变试验,分析了蠕变试验中煤样的弹塑性应变特性及稳态蠕变速率演化规律。人们对岩石循环作用下的力学响应研究,主要集中在岩石压缩与卸荷领域[12-14]。ARAEI等[15]研究了单轴循环荷载下加载速率、初始应力状态对岩石应力-应变曲线的影响;张志镇等[16]基于煤岩、红砂岩和花岗岩等3种典型岩石试件的轴向加卸载试验,探究了岩性对受载岩石能量演化特征的影响规律。上述研究多针对岩石在单-压缩或者拉伸荷载作用下的蠕变特性及在压缩循环荷载作用下的力学响应机制,对岩石在压缩与拉伸循环荷载下的蠕变特性研究较少。为了揭示岩石在循环压-拉荷载条件下的蠕变特性,本文作者利用自制的岩石杠杆式拉-压蠕变试验仪,对周期性恒定压-拉循环荷载与等增量压-拉循环荷载作用下红砂岩的蠕变特性进行分析,探讨蠕变应变与循环次数之间的关系,并分析Burgers蠕变参数与循环次数之间的关系。
1 试验设备与方案
1.1 试验设备
试验采用自制的岩石杠杆式拉压蠕变试验仪,该测试系统由整体框架、两级杠杆、压-拉连接探头、荷重砝码及拉压转换栓等组成,可方便实现岩石的拉伸与压缩蠕变实验,试验仪设计示意图如图1所示。有关该设备的详细介绍见文献[17-18]。为避免压-拉循环荷载施加过程中出现偏心受力,在试验过程中采用自制的岩石压-拉连接装置[17]。
将2个长×宽为3 mm×20 mm的电阻应变片对称粘贴在试样轴向中心部位以测试试样轴向变形,2个长×宽为3 mm×5 mm横向对称粘贴在试样中心位置测试其横向变形,电阻应变片电阻均为120 Ω。粘贴电阻应变片后的岩石试样如图2所示。应用DH3821静态应力应变测试分析系统采集应变。
1.2 试样制备
试样采用广泛分布于重庆市的红砂岩,所选择岩块质地均匀,结构致密,矿物颗粒较粗且为肉红色,密度为2 380 kg/cm3,肉眼观测无可见裂隙。经实验室加工制备成直径为50 mm、高为100 mm的标准圆柱形试件。加工过程均严格按照国际岩石力学学会(ISRM)试验规程,试样直径的误差不超过0.3 mm,端面不平整度允许偏差为±5 μm,端面应垂直于试件轴线,允许偏差为±0.25°。试样制备完成后,经过筛选的部分岩石试样如图2所示。

图1 杠杆式岩石拉伸压缩蠕变试验仪
Fig. 1 Leveraged rock tensile and compression creep testing machine

图2 岩石试样
Fig. 2 Rock specimens
1.3 试验方案与步骤
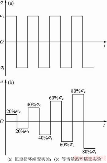
图3所示为红砂岩单轴压缩与拉伸作用下的应力-应变曲线(其中,σc为压缩应力,σt为拉伸应力)。测得红砂岩的平均抗压强度为54.32 MPa,平均抗拉强度为1.40 MPa,压缩屈服强度为45.17 MPa,拉伸屈服强度为1.03 MPa。采用恒定循环荷载及等增量循环荷载2种荷载形式探索红砂岩在压-拉循环荷载作用下的流变力学特性。恒定压-拉荷载循环蠕变实验示意图如图4(a)所示,实验荷载分别取红砂岩单轴压、拉强度的50%与85%进行不同压、拉应力条件下的循环蠕变试验;等增量循环荷载蠕变实验如图4(b)所示,实验荷载分别取20%,40%,60%及80%的极限压-拉荷载。
详细试验步骤如下。

图3 红砂岩单轴直接拉伸与压缩作用下的应力-轴向应变曲线
Fig. 3 Typical curve of stress and axial strain of sandstone samples under direct tension and compression

图4 蠕变实验示意图
Fig. 4 Diagram of tensile and compressive cyclic creep loading
步骤1:使用高强树脂结构胶将试件黏接在拉伸装置的2个拉头上,校正对中后在通风处放置48 h以上后投入试验使用。
步骤2:将试样安装在材料试验机上,连接好数据采集线路,并调整好中心位置,使岩样的轴线与试验机加载中心线重合,避免偏心受力,从而影响试验结果。
步骤3:采用挂重的形式施加轴向压缩与拉伸荷载,每次荷载转换前将施加在试样上的荷载卸掉,荷载转换在1 min内完成。
步骤4:交替多次施加压-拉循环荷载,每级荷载持续约12 h,最后一级荷载下岩石试件变形趋于稳定或者出现破坏,试验结束。
步骤5:取出岩样,整理试验数据。
2 试验结果分析
2.1 恒定压-拉循环荷载蠕变结果分析
图5和6所示分别为50%σc-50%σt及85%σc- 85%σt循环荷载作用下的红砂岩循环蠕变实验曲线。图5中压-拉恒定循环荷载分别为27.16 MPa(50%σc)和0.70 MPa(50%σt),图6中压-拉恒定循环荷载分别为46.17 MPa(85%σc)和1.19 MPa(85%σt)。在2种循环荷载下,蠕变实验各进行了5次循环。从图 5和图6 可以看出:在2种试验方案中,红砂岩试样在各级恒定荷载作用下均包含明显的瞬时应变和衰减蠕变、稳态蠕变这2个阶段;在85%σt(1.19 MPa)荷载作用下,岩样的蠕变曲线分为瞬时应变和衰减蠕变Ⅰ、稳态蠕变Ⅱ及加速蠕变Ⅲ等阶段,如图7所示。
为了分析2种应力等级作用下红砂岩蠕变特性的差异,特对试样在各级循环荷载作用下的永久应变与最大应变进行统计,结果如表1所示。图8和图9所示分别为轴向、横向最大应变及轴向、横向最大永久应变与循环次数的关系。

图5 50%σc-50%σt循环荷载作用下试样蠕变曲线
Fig. 5 Creep curves of the sample under 50%σc-50%σt cyclic loading

图6 85%σc-85%σt循环荷载作用下试样蠕变曲线
Fig. 6 Creep curves of the sample under 85%σc-85%σt cyclic loading

图7 1.19 MPa拉伸荷载下试样蠕变全过程曲线
Fig. 7 Creep curves of the sample under tensile strength of 1.19 MPa
综合图 5~6、图8~9和表 1 可以看出:在50%σc-50%σt循环荷载作用下,试样最大轴向应变随着循环次数增加而增大,而横向应变幅度、最大横向应变均随这循环次数增加呈减小趋势,表明红砂岩试样在50%σc-50%σt这一组相对较低荷载作用下试样以压缩变形为主,整体表现为“缩短”而无明显扩容现象;在85%σc-85%σt循环荷载作用下,试样最大轴向应变与最大横向应变亦随着循环次数增加而增大,最大轴向应变从6.83×10-3增加到7.15×10-3,增幅为0.55×10-3,而最大横向应变从-1.82×10-3增加到-2.55×10-3,增幅为0.73×10-3,表明在85%σc-85%σt这1组相对较高荷载作用下试样不仅轴向“缩短”且出现体积扩容。在2种不同压-拉荷载作用下,试样均出现一定程度的残余永久变形;在85%σc-85%σb循环荷载作用下,试样最大轴向与横向残余永久应变均随着循环次数增加而增加;而在50%σc-50%σt循环荷载作用下,试样最大轴向残余永久应变随着循环次数增加而增加,而横向永久应变却随着循环次数增加呈线性减小趋势。

图8 试样最大应变与循环次数关系
Fig. 8 Relationships between maximum deformation and cycle times

图9 试样最大永久应变与循环次数关系
Fig. 9 Relationships between permanent deformation and cycle times
表 1 不同荷载作用下岩样应变统计
Table 1 Statistics for strain of rock sample under different cyclic loading

2.2 等增量压-拉循环荷载蠕变结果分析
为了探索不同循环荷载作用下红砂岩试样的蠕变特征,对试样进行等增量压-拉循环荷载作用下的蠕变实验。图10所示为等增量循环荷载作用下红砂岩试样蠕变曲线,蠕变曲线上、下方的数字表示各级荷载。从图10可以看出:试样在各级压-拉恒定荷载作用下均出现瞬时应变、减速蠕变及稳态蠕变;红砂岩轴向与横向蠕变变形均随着荷载增加而增加,在经历4次等增量循环荷载蠕变后,轴向应变增量分别为1.26×10-3,1.11×10-3和1.04×10-3,横向应变增量分别为0.60×10-3,0.70×10-3和0.59×10-3;红砂岩在等增量循环荷载作用下产生一定程度的永久残余应变,当荷载较小时(例如压缩荷载为10.86 MPa,拉伸荷载为0.28 MPa),试样轴向永久变形量为0.02×10-3,试样整体以压缩为主;随着荷载增大,轴向应变在循环荷载为40%σc-40%σt(压缩荷载为21.73 MPa,拉伸荷载为0.56 MPa)时开始表现为轴向拉伸,在60%σc-60%σt循环荷载作用下试样在A点达到最大体积压缩应变,随后试样体积逐步开始扩容。

图10 等增量压-拉循环荷载作用下蠕变曲线
Fig. 10 Creep curves of the sample under incremental tension and compression loading
3 蠕变模型及参数分析
从蠕变实验结果可以看出:3个试样蠕变曲线均包含瞬时加载应变、衰减蠕变及稳态蠕变,仅在拉伸荷载为1.19 MPa时出现加速蠕变阶段。Burgers蠕变模型可以描述岩土材料的瞬时加载变形、衰减蠕变与稳态蠕变,因而该模型广泛应用于岩石的蠕变参数识别[19-20]。为了进一步分析循环荷载作用下的红砂岩蠕变特性,采用Burgers蠕变模型对50%σc-50%σt及85%σc-85%σt这2种恒定循环荷载作用下的轴向蠕变曲线进行回归分析,进一步探讨循环参数与循环次数之间的规律。图11所示为Burgers蠕变模型(其中,εM和εK分别为马克思威尔模型应变和开尔文模型应变)。
Burgers蠕变模型的蠕变方程为
(1)
式中:σ为应力;t为蠕变时间;ε为应变;EM和EK分别为瞬时弹性模量和黏性模量;ηK和ηM均为黏滞系数。
基于Quasi-Newton非线性优化算法的Matlab编程,对2种压-拉循环荷载作用下的轴向蠕变实验数据进行Burgers 蠕变模型的参数识别。表2所示为不同压-拉循环荷载作用下试样Burgers蠕变模型参数。

图11 Burgers蠕变模型
Fig. 11 Burgers creep model
从表2可以看出:除了荷载等级为1.19 MPa拉伸蠕变参数相关系数(R2)为0.87外,其余拟合相关系数(R2)均大于0.97,说明Burgers蠕变模型可以较好地反映红砂岩在压-拉循环荷载作用下的瞬时加载应变、衰减蠕变及稳态蠕变等蠕变特性。
图12所示为不同压-拉循环荷载作用下,Burgers蠕变参数与循环次数关系。从图12可以看出:随着循环次数增加,红砂岩的压缩瞬时弹性模量EMc及拉伸瞬时弹性模量绝对值|EMt|均随着循环次数增加而减小,说明周期性压-拉循环恒定荷载会降低岩石的弹性性能。在50%σc-50%σt循环荷载作用下,蠕变参数ηMc, EKc,|ηMt|,|EKt|和|ηKt|均随着循环次数增加呈现增大趋势,而蠕变参数ηKc随着循环次数增加呈现减小趋势,表明红砂岩试样在50%σc-50%σt这1组相对较低恒定荷载作用下试样呈现一定程度的黏弹性变形。在85%σc-85%σt循环荷载作用下,蠕变参数ηMc,EKc,ηKc,|ηMt|,|EKt|和|ηKt|在1~3次循环中整体呈现增大趋势,而在4~5次循环后开始减小,说明红砂岩试样在85%σc-85%σt这1组相对较高恒定荷载作用下经历3~4次循环后材料属性随循环次数及时间进一步劣化,试样最终在1.19 MPa拉伸荷载作用下发生断裂,断裂面近水平。
表2 不同压-拉循环荷载作用下Burgers蠕变模型参数统计
Table 2 Statistics for model parameters of rock samples under different cyclic compression and tension loading


图12 蠕变参数与循环次数关系曲线
Fig. 12 Relationship between creep parameters and cycle times
4 结论
1) 红砂岩试样在各级恒定荷载作用下均包含明显的瞬时应变和衰减蠕变、稳态蠕变2个阶段,在85%σt(1.19 MPa)荷载作用下,岩样的蠕变曲线分为瞬时应变和衰减蠕变Ⅰ、稳态蠕变Ⅱ及加速蠕变Ⅲ等阶段。
2) 在恒定压-拉循环荷载作用下,试样最大轴向应变随着循环次数增加而增大;在50%σc-50%σt循环荷载作用下,最大横向应变均随着循环次数增加呈减小趋势,整体表现为“缩短”而无明显扩容现象;在85%σc-85%σt循环荷载作用下,最大横向应变亦随着循环次数增加而增大,试样不仅轴向“缩短”且出现体积扩容。
3) 在2种不同恒定压-拉荷载作用下,试样均出现一定程度的残余永久变形;在85%σc-85%σt循环荷载作用下,试样轴向与横向残余永久应变均随着循环次数增加而增加;在50%σc-50%σt循环荷载作用下,试样轴向应变随着循环次数增加而增加,而横向应变却随着循环次数增加呈线性减小趋势。
4) 在等增量压-拉循环荷载作用下,红砂岩轴向与横向蠕变均随着荷载增加而增加,且产生一定程度的永久残余应变。试样在60%压缩强度荷载作用起始阶段达到最大体积压缩应变,随后试样体积逐步开始扩容。
5) Burgers蠕变模型可以较好地反映红砂岩在恒定压-拉循环荷载作用下的蠕变特性:红砂岩的压缩瞬时弹性模量随着循环次数增加而减小,岩样弹性性能随着循环次数的增加而降低;较高恒定压-拉荷载循环导致红砂岩压缩和拉伸蠕变参数ηMc,EKc,ηKc,ηMt,EKt和ηKt均随着循环次数增加而先增大后减小。红砂岩试样在经历3~4次循环后材料属性随循环次数及时间进一步劣化,最终出现拉伸破坏。
参考文献:
[1] 刘东燕. 岩石力学[M]. 重庆: 重庆大学出版社, 2016: 178-185.
LIU Dongyan. Rock mechanics[M]. Chongqing: Chongqing University Press, 2016: 178-185.
[2] MOHAMMAD R, MOHAMMAD F H, ABBAS M. Determination of longwall mining-induced stress using the strain energy method[J]. Rock Mechanics and Rock Engineering, 2015, 48(6): 2421-2433.
[3] YU Huaichang, LIU Handong, et al. Experimental Study on time-dependent behavior of silty mudstone from the three gorges reservoir area, China[J]. KSCE Journal of Civil Engineering, 2017, 21(3): 715-724.
[4] 金解放, 李夕兵, 王观石, 等. 循环冲击载荷作用下砂岩破坏模式及其机理[J]. 中南大学学报(自然科学版), 2012, 43(4): 1453-1462.
JIN Jiefang, LI Xibing, WANG Guanshi, et al. Failure modes and mechanisms of sandstone under cyclic impact loadings[J]. Journal of Central South University(Science andTechnology), 2012, 43(4): 1453-1462.
[5] LIU Huaizhong, XIE Hongqiang, et al. Nonlinear creep damage constitutive model for soft rocks[J]. Mechanics of Time-Dependent Materials, 2017, 21: 73-96.
[6] 王春萍, 陈亮, 梁家玮, 等. 考虑温度影响的花岗岩蠕变全过程本构模型研究[J]. 岩土力学, 2014, 35(9): 2494-2506.
WANG Chunping, CHEN Liang, LIANG Jiawei, et al. Creep constitutive model for full creep process of granite considering thermal effect[J]. Rock and Soil Mechanics, 2014, 35(9): 2494-2506.
[7] LIU Yang, LIU Changwu, KANG Yaming, et al. Experimental research on creep properties of limestone under fluid–solid coupling[J]. Environmental Earth Sciences, 2015, 73(11): 7011-7018.
[8] 刘东燕,赵宝云, 朱可善, 等. 砂岩直接拉伸蠕变特性及 Burgers 模型的改进与应用[J]. 岩土工程学报, 2011, 33(11): 1740-1744.
LIU Dongyan, ZHAO Baoyun, ZHU Keshan, et al. Direct tension creep behaviors of sandstone and improvement and application of Burgers model[J]. Chinese Journal of Geotechnical Engineering, 2011, 33(11): 1740-1744.
[9] 辛亚军, 李梦远. 岩石分级加载蠕变的能量耗散与变形机制研究[J]. 岩石力学与工程学报, 2016, 35(增刊1): 2883-2897.
XIN Yajun, LI Mengyuan. Study on deformation mechanism and energy dissipation of rock creep under step loading[J]. Chinese Journal of Rock Mechanics and Engineering, 2016, 35(S1): 2883-2897.
[10] ZHAO Yanlin, WANG Yixian, WANG Weijun, et al. Modeling of non-linear rheological behavior of hard rock using triaxial rheological experiment[J]. International Journal of Rock Mechanics & Mining Sciences, 2017, 93: 66-75.
[11] 徐鹏, 杨圣奇. 循环加卸载下煤的黏弹塑性蠕变本构关系研究[J]. 岩石力学与工程学报, 2015, 34(3): 537-545.
XU Peng, YANG Shengqi. Study of visco-elasto-plastic constitutive model of coal under cyclic loading[J]. Chinese Journal of Rock Mechanics and Engineering, 2015, 34(3): 537-545.
[12] GHAMGOSAR M, ERARSLAN N, WILLIAMS D J. Experimental investigation of fracture process zone in rocks damaged under cyclic loadings[J]. Experimental Mechanics, 2017, 57(1): 97-113.
[13] 姜德义, 崔遥, 范金洋, 等. 非连续循环荷载作用下岩盐力学特性试验研究[J]. 岩土力学, 2017, 38(5): 1-8.
JIANG Deyi, Cui Yao, FAN Jinyang, et al. Experimental study of mechanical response of salt rock under discontinuous cyclic loading[J]. Rock and Soil Mechanics, 2017, 38(5): 1-8.
[14] KAVAN K, ELHAM M, MARIA D, et al. Stability and serviceability of underground energy storage caverns in rock salt subjected to mechanical cyclic loading[J]. International Journal of Rock Mechanics & Mining Sciences, 2016, 86: 115-131.
[15] ARAEI A, RAZEGHI H R, GHALANDARZADEH A. Effects of loading rate and initial stress state on stress-strain behavior of rock fill materials under monotonic and cyclic loading conditions[J]. Scientia Iranica, 2012, 9(15): 1220-1235.
[16] 张志镇, 高峰. 3种岩石能量演化特征的试验研究[J]. 中国矿业大学学报, 2015, 44(3): 416-422.
ZHANG Zhizhen, GAO Feng. Experimental investigations on energy evolution characteristics of coal, sandstone and granite during loading process[J]. Journal of China University of Mining & Technology, 2015, 44(3): 416-422.
[17] 赵宝云, 刘伟, 许年春, 等. 岩石拉压蠕变试验仪研制及应用[J]. 实验力学, 2016, 31(2): 238-242.
ZHAO Baoyun, LIU Wei, XU Nianchun, et al. On the development and application of an experimental instrument for rock creep behavior subjected to tensile and compressive action[J]. Experimental Mechanics, 2016, 31(2): 238-242.
[18] 赵宝云, 刘东燕, 董倩, 等. 杠杆式岩石拉伸压缩流变试验仪: CN201210565068.5[P]. 2012-12-24.
ZHAO Baoyun, LIU Dongyan, DONG Qian, et al. Leveraged tensile and compressive rheological tester: CN201210565068.5[P]. 2012-12-24..
[19] ZHANG Yu, XU Weiya, SHAO Jianfu, et al. Experimental investigation of creep behavior of clastic rock in Xiangjiaba Hydropower Project[J]. Water Science and Engineering, 2015, 8(1): 55-62.
[20] 赵延林, 唐劲舟, 付成成, 等. 岩石黏弹塑性应变分离的流变试验与蠕变损伤模型[J]. 岩石力学与工程学报, 2016, 35(7): 1297-1308.
ZHAO Yanlin, TANG Jinzhou, FU Chengcheng, et al. Study of visco-elasto-plastic constitutive model of coal under cyclic loading[J]. Chinese Journal of Rock Mechanics and Engineering, 2016, 35(7): 1297-1308.
(编辑 伍锦花)
收稿日期:2017-08-08;修回日期:2017-09-29
基金项目(Foundation item):国家自然科学基金资助项目(41302223);重庆市国土资源和房屋管理局科技计划项目(KJ-2015047);第三批重庆市高等学校青年骨干教师资助计划项目(2016);重庆市基础与前沿研究计划项目(cstc2016jcyjA0074, cstc2016jcyjA0933) (Project(41302223) supported by the National Natural Science Foundation of China; Project (KJ-2015047) supported by the Science and Technology Plan of Chongqing Administration of Land, Resources and Housing; Project(2016) supported by Chongqing No.3 Colleges and Universities Youth Backbone Teachers Funding Plans; Projects(cstc2016jcyjA0074, cstc2016jcyjA0933) supported by Chongqing Research Program of Basic Research and Frontier Technology)
通信作者:赵宝云,博士,副教授,从事岩石力学与工程等研究;E-mail:baoyun666@163.com